开云电子(中国)官网

头部背景图 头部背景图
关爱版

当前位置:首页业务频道国土空间规划规划公布

规划公布
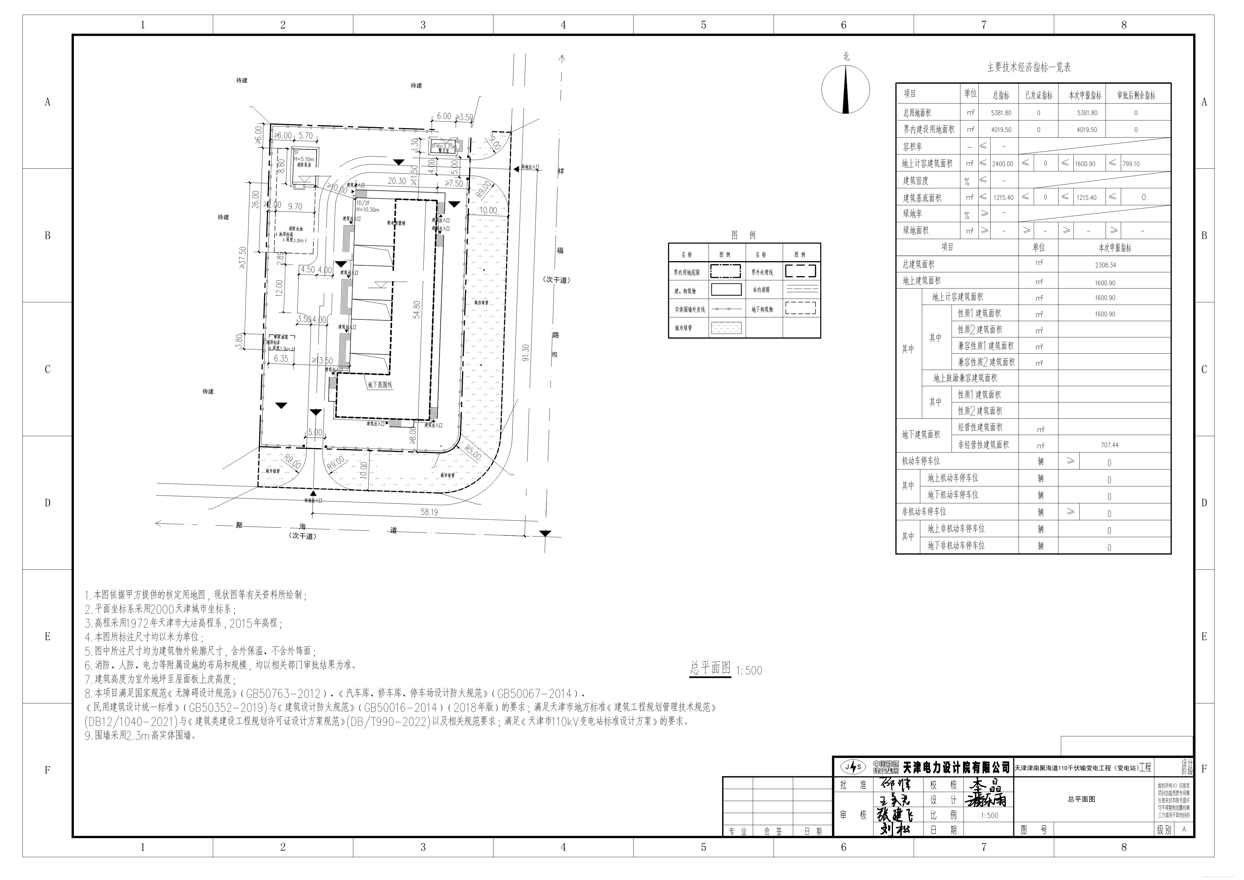
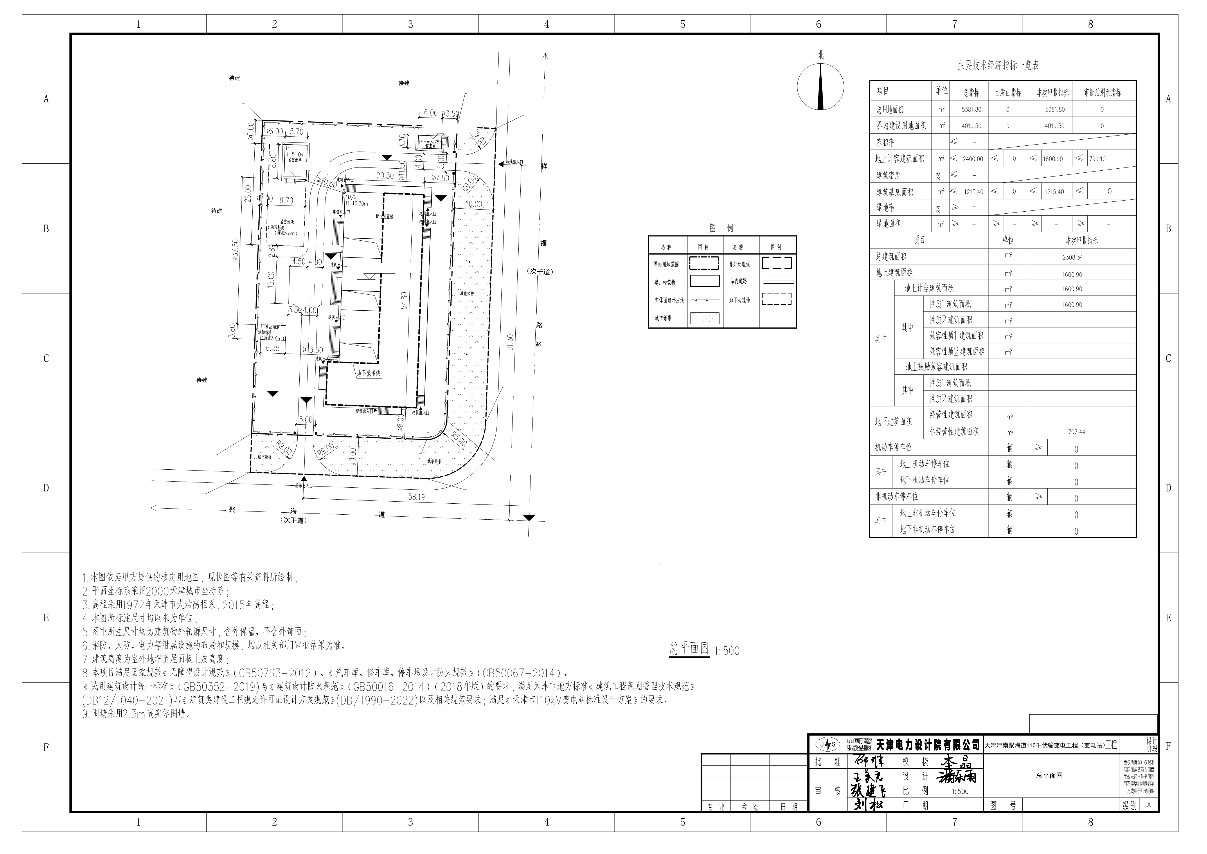
(津南区)国网天津市电力公司城南供电分公司天津津南聚海道110千伏输变电工程(变电站)建设工程设计方案总平面图的公布
来源:开云电子(中国)官网津南分局 时间:2025-03-13 10:10

依据《中华人民共和国城乡规划法》的有关要求,现将国网天津市电力公司城南供电分公司天津津南聚海道110千伏输变电工程(变电站)建设工程设计方案总平面图进行公布,公布期限为信息发布之日至建设项目规划验收合格为止。

通讯地址:天津市津南区南环路3号

联系电话:88510862

开云电子(中国)官网津南分局

2025年313日    


附件下载:

相关新闻:

友情链接:
党政机关

关于本站| 版权信息| 网站地图| 使用帮助| 联系我们

主办单位:开云电子(中国)官网 地址:天津市和平区曲阜道84号 邮编:300042

网站标识码:1200000077 备案编号:津ICP备19001981号 徽标  津公网安备12010102000518号

版权所有:开云电子(中国)官网

关于本站|版权信息|网站地图|使用帮助|联系我们

主办单位:开云电子(中国)官网

地址:天津市和平区曲阜道84号

网站标识码:1200000077

备案编号:津ICP备19001981号 版权所有:开云电子(中国)官网

徽标津公网安备12010102000518号

党政机关
新葡京博彩 澳门银河网上赌场 LOL官方投注平台 皇冠体育 澳门银河网上赌场 全球十大外围足球平台