开云电子(中国)官网

头部背景图 头部背景图
关爱版

当前位置:首页业务频道国土空间规划规划公布

规划公布
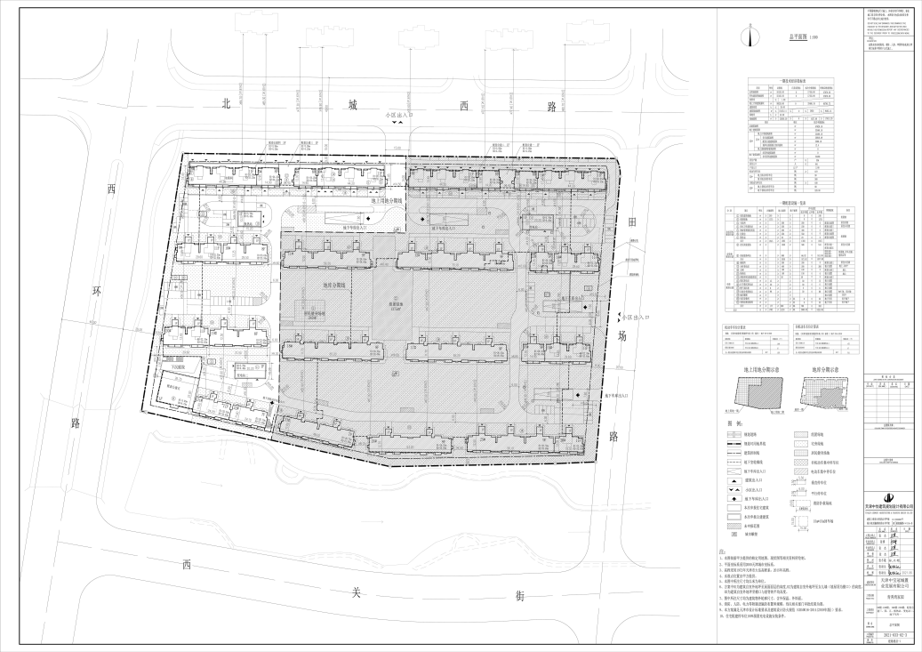
(宝坻区)天津中宝冠城置业发展有限公司青秀湾家园5#楼-10#楼、19#楼-22#楼、配套公建三、四、五、换热站、变电站二、地下车库一项目建设工程规划许可证批后公布
来源:开云电子(中国)官网宝坻分局 时间:2025-08-13 16:46

开云电子(中国)官网宝坻分局于2025年8月12日核发了青秀湾家园5#楼-10#楼、19#楼-22#楼、配套公建三、四、五、换热站、变电站二、地下车库一项目建设工程规划许可证。依据《中华人民共和国城乡规划法》及住房和城乡建设部《关于城乡规划公开公示的规定》的有关要求,现将该项目总平面图公布,公布期限为信息发布之日起至建设项目规划验收合格为止。

公示部门:开云电子(中国)官网宝坻分局

建议意见反馈方式:可通过电子邮箱或信件反馈

邮寄地址:天津市宝坻区潮阳大道北侧(开云电子(中国)官网宝坻分局)

邮政编码:301800

电子邮箱:gzjbdfjjgk@tj.gov.cn


附件下载:

相关新闻:

友情链接:
党政机关

关于本站| 版权信息| 网站地图| 使用帮助| 联系我们

主办单位:开云电子(中国)官网 地址:天津市和平区曲阜道84号 邮编:300042

网站标识码:1200000077 备案编号:津ICP备19001981号 徽标  津公网安备12010102000518号

版权所有:开云电子(中国)官网

关于本站|版权信息|网站地图|使用帮助|联系我们

主办单位:开云电子(中国)官网

地址:天津市和平区曲阜道84号

网站标识码:1200000077

备案编号:津ICP备19001981号 版权所有:开云电子(中国)官网

徽标津公网安备12010102000518号

党政机关
博彩app 澳门银河网上赌场 雷火电竞 金沙博彩 太阳城娱乐 金沙娱乐城